Vrij Makelaardij
Verkocht onder voorbehoud:Boterbloem 1, 4102 KS Culemborg - Foto
Verkocht onder voorbehoud
+43

Boterbloem 1 4102 KS Culemborg € 575.000,- k.k.

  • Woonhuis
  • 6 kamers
  • 5 slaapkamers
  • 2 badkamers
  • Bouwjaar 1987
  • 275 m² perceeloppervlakte
  • 132 m² gebruiksoppervlakte
  • A Energielabel A

Beschrijving

RUIMTE, COMFORT ÉN LEVENSLOOPBESTENDIG WONEN!
Op zoek naar een woning die écht alles in huis heeft? Deze royale, uitgebouwde hoekwoning van maar liefst ca. 133 m² woonoppervlak bevindt zich in de populaire en kindvriendelijke wijk Voorkoop op loopafstand van winkels, supermarkten, scholen, sportverenigingen en het gezellige Chopinplein. Met vijf slaapkamers, twee badkamers, een slaapkamer en badkamer op de begane grond, ruime geïsoleerde berging, energielabel A, 10 zonnepanelen, airconditioning op verdiepingen en een ruime oprit voor twee auto’s met aansluiting om te laden is dit een woning die aan al je woonwensen voldoet!
________________________________________
LEVENSLOOPBESTENDIG EN DIRECT TE BETREKKEN
De woning is ideaal voor wie nu of in de toekomst gelijkvloers wil wonen. De slaapkamer op de begane grond is netjes afgewerkt met plavuizen, voorzien van airconditioning (2021) en biedt directe toegang tot de moderne badkamer met o.a. een stortdouche, wastafelmeubel met verlichte spiegel en elektrische vloerverwarming. In een aparte ruimte vind je hier ook de wasmachine- en drogeropstelling.
________________________________________
RUIM EN LICHT WONEN
Dankzij de royale uitbouw aan de zijkant is er een fantastische, lichte woonkamer ontstaan. Grote raampartijen, een warme visgraat parketvloer, een gezellige houtkachel en moderne inbouwspots zorgen voor een fijne sfeer. Ook hier is een airconditioning (2021) aanwezig, die naast koelen ook kan verwarmen.
________________________________________
MODERNE KEUKEN MET EETDEEL EN TOEGANG TOT DE TUIN
De moderne keuken in dubbele wandopstelling is een fijne plek om te koken en samen te komen. Voorzien van een keramiek werkblad, Quooker, apothekerskast, voldoende bergruimte en luxe inbouwapparatuur zoals o.a. een inductiekookplaat, afzuigkap, combimagnetron en vaatwasser. Via het eetgedeelte loop je zó de achtertuin in.
________________________________________
BUITENLEVEN MET EXTRA’S
De fraai aangelegde achtertuin, gelegen op het noordoosten, is een heerlijke plek om te ontspannen. Met een gezellige overkapping, een elektrisch zonnescherm, mooie beplanting én een ruime geïsoleerde berging voorzien van verwarming, water en stroom ben je hier van alle gemakken voorzien.
________________________________________
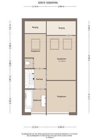
EERSTE VERDIEPING MET DRIE SLAAPKAMERS, BADKAMER EN AIRCO
Op de eerste verdieping zijn drie slaapkamers en de tweede badkamer te vinden. De badkamer is voorzien van een inloopbad met douche, dubbel wastafelmeubel met verlichte spiegel. De master bedroom is uitgerust met twee Velux dakramen uit 2024 en een eigen airco-installatie (2021). De slaapkamer aan de achterzijde en de badkamer hebben een dakkapel (2007) met HR++ glas en kunststof kozijnen. Ook een separaat toilet is in de slaapkamer aan de voorzijde is op deze verdieping aanwezig.
________________________________________
VIJFDE SLAAPKAMER OP DE TWEEDE VERDIEPING
De tweede verdieping biedt ruimte aan een voorzolder met dakraam, de CV-opstelling (Vaillant 2021) en een vijfde slaapkamer met twee Velux dakramen en een nette laminaatvloer. Ideaal als extra slaapkamer, werkkamer of hobbyruimte.
________________________________________

DE IDEALE PLEK MET ALLES BINNEN HANDBEREIK

Alles wat je nodig hebt ligt binnen loopafstand: scholen, kinderopvang, winkels, sportclubs, muziekvereniging, dansschool, speeltuinen en zelfs de kinderboerderij. Ook park De Plantage en de Lekdijk, met hun prachtige uiterwaarden, liggen letterlijk om de hoek.

De historische binnenstad en het NS-station bereik je in slechts vijf minuten met de fiets. Vanuit hier ben je met de trein zó in Utrecht, en ook ’s-Hertogenbosch ligt op korte afstand.

Dankzij de centrale ligging van Culemborg en de directe aansluiting op de A2 rijd je gemakkelijk naar steden als Utrecht, Den Bosch of Amsterdam. Ideaal voor wie rustig wil wonen, maar toch overal dichtbij wil zijn.

SAMENGEVAT:
• Royale hoekwoning met ca. 133 m² woonoppervlak.
• Slaap- én badkamer op de begane grond.
• In totaal 5 slaapkamers en 2 badkamers.
• Ruim perceel van 275 m² met oprit voor 2 auto’s.
• Energielabel A en 10 zonnepanelen.
• Airconditioning op begane grond en eerste verdieping (2021).
• Ruime, lichte woonkamer met houtkachel.
• Moderne keuken met inbouwapparatuur en Quooker.
• Fraaie tuin met overkapping, geïsoleerde berging en zonnescherm.
• Gelegen in een kindvriendelijke wijk, op loopafstand van alle voorzieningen.

Oplevering medio februari 2026
________________________________________
OOK ZO ENTHOUSIAST GEWORDEN?
Deze woning is tot in de puntjes verzorgd, instapklaar en biedt ruimte, comfort én levensloopbestendigheid op een goede locatie. Kom snel kijken en laat je verrassen door alles wat deze woning te bieden heeft. Bel ons vandaag nog voor een bezichtiging – we laten je deze prachtige woning graag live zien!

Kaart

Kenmerken

Overdracht

Referentienummer
05541
Vraagprijs
€ 575.000,- k.k.
Status
Verkocht onder voorbehoud
Aanvaarding
In overleg
Aangeboden sinds
Woensdag 15 oktober 2025
Laatste wijziging
Maandag 8 december 2025

Bouw

Type object
Woonhuis, eengezinswoning, hoekwoning
Soort bouw
Bestaande bouw
Bouwperiode
1987
Dakbedekking
Bitumen
Dakpannen
Type dak
Samengesteld
Isolatievormen
Dakisolatie
Dubbel glas
Muurisolatie
Spouwmuren
Vloerisolatie
Volledig geïsoleerd

Oppervlaktes en inhoud

Perceeloppervlakte
275 m²
Woonoppervlakte
132 m²
Inhoud
483 m³
Oppervlakte externe bergruimte
30 m²

Indeling

Aantal bouwlagen
3
Aantal kamers
6 (waarvan 5 slaapkamers)
Aantal badkamers
2 (en 1 apart toilet)

Locatie

Ligging
In woonwijk

Tuin

Type
Achtertuin
Hoofdtuin
Ja
Oriëntering
Noord-oost
Heeft een achterom
Ja
Staat
Prachtig aangelegd

Energieverbruik

Energielabel
A

CV ketel

CV ketel
Vaillant
Warmtebron
Gas
Bouwjaar
2021
Combiketel
Ja
Eigendom
Eigendom

Uitrusting

Aantal parkeerplaatsen
2
Warm water
CV-ketel
Verwarmingssysteem
Airconditioning
Centrale verwarming
Houtkachel
Ventilatie methode
Mechanische ventilatie
Natuurlijke ventilatie
Badkamervoorzieningen Badkamer 1
Douche
Inloopdouche
Wasmachineaansluiting
Wastafelmeubel
Badkamervoorzieningen Badkamer 2
Ligbad
Toilet
Wastafelmeubel
Heeft airco
Ja
Heeft een rookkanaal
Ja
Glasvezelaansluiting aanwezig
Ja
Tuin aanwezig
Ja
Beschikt over een internetverbinding
Ja
Heeft schuur/berging
Ja
Heeft een dakraam
Ja
Heeft zonwering
Ja
Heeft zonnepanelen
Ja
Heeft ventilatie
Ja

Kadastrale gegevens

Kadastrale aanduiding
Culemborg K 2253
Perceeloppervlakte
275 m²
Omvang
Geheel perceel
Eigendomsituatie
Eigen grond

Brochure(s) en overige bijlagen

Boterbloem 1, 4102 KS CULEMBORG (1) Download
Vrij Makelaardij