Vrij Makelaardij
Verkocht onder voorbehoud:Pelmolenweg 59, 4105 XM Culemborg - Foto
Verkocht onder voorbehoud
+55

Pelmolenweg 59 4105 XM Culemborg € 679.000,- k.k.

  • Woonhuis
  • 5 kamers
  • 4 slaapkamers
  • 1 badkamers
  • Bouwjaar 1996
  • 265 m² perceeloppervlakte
  • 147 m² gebruiksoppervlakte
  • A Energielabel A

Beschrijving

ROYALE HALF VRIJSTAANDE GEZINSWONING MET GARAGE, UITBOUW, 4 SLAAPKAMERS EN ZONNIGE TUIN – INSTAPKLAAR WONEN IN CULEMBORG!

Zoek jij een ruime, modern afgewerkte woning waar je zó in kunt trekken? Dan is deze verrassend royale half vrijstaande woning in de geliefde, kindvriendelijke wijk Hoge Prijs in Culemborg echt iets voor jou! Gelegen aan een rustige, autoluwe straat en op loopafstand van winkels, supermarkten, scholen, huisartsenpraktijk én sportverenigingen. Met maar liefst 4 slaapkamers, een uitbouw, energielabel A, 14 zonnepanelen, airconditioning én een zonnige tuin op het zuiden is dit jouw kans op royaal, comfortabel en duurzaam wonen!
________________________________________
EEN RUSTIGE LIGGING MET ALLES DICHTBIJ

Deze woning ligt in een voor auto’s doodlopende straat, wat zorgt voor veel rust en veiligheid – ideaal voor gezinnen met kinderen. Toch woon je hier ook zeer centraal: het gezellige Koopmansgildeplein met al zijn voorzieningen bevindt zich op loopafstand. En moet je de stad uit? Alle uitvalswegen en het station zijn nabij gelegen.
________________________________________
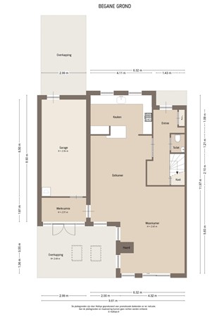
EIGEN OPRIT, CARPORT EN GEÏSOLEERDE GARAGE

Bij aankomst valt meteen de ruime oprit met carport op. Parkeren? Geen enkel probleem. De garage is geïsoleerd en verwarmd, en biedt volop ruimte voor opslag of hobby’s. Ook de wasmachine en droger bevinden zich hier. Door het niveau van isoleren is deze ruimte relatief eenvoudig in gebruik te nemen met een andere (woon)bestemming. Extra pluspunt: de woning beschikt over drainage onder de woning en is keurig onderhouden.
________________________________________
VERNIEUWD EN UITGEBOUWD – LEVENSLOOPBESTENDIG WONEN KAN HIER

Aan de achter- én zijkant van de woning is iets uitgebouwd, waardoor er op de begane grond meer GO wonen is ontstaan. De extra werkkamer tussen woonkamer en garage is ideaal als thuiswerkplek, speel- of hobbyruimte. De gezellige L-vormige woonkamer is voorzien van een massief houten vloer afwerking en sfeervolle houtkachel en dankzij de aluminium schuifpui geniet je hier van veel daglicht én een directe verbinding met de tuin.
________________________________________
MODERNE KEUKEN MET LUXE AFWERKING

De moderne keuken in hoekopstelling is voorzien van een stijlvol granito werkblad en beschikt over hoogwaardige inbouwapparatuur zoals een Quooker, vaatwasser, koelkast en een groot 6-pits gasfornuis met dubbele oven – perfect voor de kookliefhebber.
________________________________________
ZONNIGE TUIN OP HET ZUIDEN MET OVERKAPPING

Via de schuifpui in de woonkamer en loopdeur vanuit de werkkamer bereik je de verzorgde achtertuin met zonnig terras, kunstgras, fontein, borders én een fijne overkapping. Hier geniet je tot in de late uurtjes van het buitenleven.
________________________________________
VIER RUIME SLAAPKAMERS EN EEN LUXE BADKAMER

Op de eerste verdieping vind je drie slaapkamers, allen voorzien van houten kozijnen met dubbel glas. De master bedroom aan de voorzijde is extra comfortabel met een airco (ook verwarmend!) en een ruime inbouwkast. De moderne badkamer is werkelijk een plaatje: een inloopdouche, ligbad, dubbel wastafelmeubel met verlichte spiegel, zwevend toilet en designradiator – hier kom je echt tot rust.

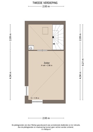
De tweede verdieping beschikt over een lichte overloop met dakraam, cv-opstelling (Nefit 2017) en een vierde ruime slaapkamer met mooie V-groef laminaat vloerafwerking en veel natuurlijk daglicht.
________________________________________
DUURZAAM EN COMFORTABEL WONEN

Deze woning is volledig voorbereid op de toekomst: energielabel A, 14 zonnepanelen, airconditioning, dubbel glas, screens én goede isolatie maken het woongenot compleet.
________________________________________
SAMENGEVAT:

• Royale half vrijstaande woning (circa 147 m² woonoppervlak!)
• Perceel van 265 m²
• 4 slaapkamers en werkkamer op de begane grond
• Luxe keuken en badkamer
• Eigen oprit, carport en geïsoleerde garage
• Uitbouw aan achter- en zijkant
• Energielabel A + 14 zonnepanelen
• Geïsoleerde garage
• Rustige, kindvriendelijke buurt
• Dichtbij winkels, scholen, sport en uitvalswegen
• Zonnige tuin op het zuiden met overkapping

Oplevering 01 april 2026
________________________________________
KLAAR VOOR DE VOLGENDE STAP?
Deze instapklare woning heeft alles in huis voor jarenlang woonplezier. Kom de ruimte, rust en sfeer zelf ervaren – plan vandaag nog een bezichtiging. Je bent van harte welkom!

Kaart

Kenmerken

Overdracht

Referentienummer
05542
Vraagprijs
€ 679.000,- k.k.
Inrichting
Niet gestoffeerd
Inrichting
Niet gemeubileerd
Status
Verkocht onder voorbehoud
Aanvaarding
In overleg
Aangeboden sinds
Maandag 22 september 2025
Laatste wijziging
Vrijdag 10 oktober 2025

Bouw

Type object
Woonhuis, eengezinswoning, twee onder een kap woning
Soort bouw
Bestaande bouw
Bouwperiode
1996
Dakbedekking
Dakpannen
PVC
Type dak
Samengesteld
Isolatievormen
Dakisolatie
Dubbel glas
Muurisolatie
Spouwmuren
Vloerisolatie
Volledig geïsoleerd

Oppervlaktes en inhoud

Perceeloppervlakte
265 m²
Woonoppervlakte
147 m²
Inhoud
574 m³
Oppervlakte overige inpandige ruimten
19 m²
Oppervlakte gebouwgebonden buitenruimte
48 m²

Indeling

Aantal bouwlagen
3
Aantal kamers
5 (waarvan 4 slaapkamers)
Aantal badkamers
1

Locatie

Ligging
In woonwijk

Tuin

Type
Achtertuin
Hoofdtuin
Ja
Oriëntering
Zuiden
Heeft een achterom
Ja
Staat
Prachtig aangelegd

Energieverbruik

Energielabel
A

CV ketel

CV ketel
Nefit
Warmtebron
Gas
Bouwjaar
2017
Combiketel
Ja
Eigendom
Eigendom

Uitrusting

Aantal parkeerplaatsen
1
Aantal overdekte parkeerplaatsen
1
Warm water
CV-ketel
Verwarmingssysteem
Airconditioning
Centrale verwarming
Houtkachel
Ventilatie methode
Natuurlijke ventilatie
Keukenvoorzieningen
Inbouwapparatuur
Badkamervoorzieningen
Dubbele wastafel
Inloopdouche
Ligbad
Toilet
Wastafelmeubel
Parkeergelegenheid
Inpandige garage
Heeft airco
Ja
Heeft een balkon
Ja
Heeft een rookkanaal
Ja
Glasvezelaansluiting aanwezig
Ja
Tuin aanwezig
Ja
Heeft een garage
Ja
Beschikt over een internetverbinding
Ja
Heeft een dakraam
Ja
Heeft zonwering
Ja
Heeft zonnepanelen
Ja

Kadastrale gegevens

Kadastrale aanduiding
Culemborg N 905
Perceeloppervlakte
265 m²
Omvang
Geheel perceel
Eigendomsituatie
Eigen grond

Brochure(s) en overige bijlagen

Pelmolenweg 59, 4105 XM CULEMBORG (1) Download
Vrij Makelaardij