Vrij Makelaardij
Verkocht:Prijssestraat 77, 4101 CP Culemborg - Foto
Verkocht
+29

Prijssestraat 77 4101 CP Culemborg

  • Woonhuis
  • 3 kamers
  • 1 slaapkamer(s)
  • 1 badkamer
  • Bouwjaar 2000
  • 44 m² perceeloppervlakte
  • 83 m² gebruiksoppervlakte
  • C Energielabel C
Stadswoning op loopafstand van het NS station en het historisch centrum!

Beschrijving

STARTERS OPGELET: STADSWONING MET RUIM DAKTERRAS EN INPANDIGE BERGING OP LOOPAFSTAND VAN HET NS STATION EN CENTRUM VAN CULEMBORG!

Deze leuke stadswoning is binnen de singels en op loopafstand van het historisch centrum, NS station, scholen en supermarkten erg gunstig gelegen. Verder beschikt deze starterswoning over houten kozijnen met dubbel glas, ruim dakterras en een inpandige berging welke tevens vanaf de straat te bereiken is. Ook de Lekdijk met uiterwaarden bevinden zich op een steenworp afstand. De perfecte woning waar de stad en het buitenleven samen komen!

Culemborg is aan de rijksweg A2 zeer centraal gelegen. Ook de A27 en A15 bevinden zich op slechts enkele autominuten afstand, waardoor u zich met gemak door het hele land kunt verplaatsen.

Deze tussenwoning is in circa 2000 gebouwd, waardoor dit huis beschikt over een degelijke basis: Kortom een ideale stads en starters woning.

De Prijssestraat 77 beschikt over een leef keuken op de begane grond, ruime inpandige berging, royale woonkamer op de eerste verdieping met aangrenzend dakterras van 13 m² en aan de voorzijde een grote master bedroom op de tweede verdieping. Op deze verdieping is tevens de badkamer te vinden. Ook vanuit huiswerken kan prima in de extra werk-/slaapkamer op de begane grond. Het woonoppervlak bedraagt circa 83 m², waar de woning over circa 304 m³ inhoud beschikt. Door de solide basis is deze woning onder andere ideaal voor starters op de woningmarkt.

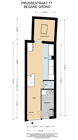
Indeling

Begane grond:
Vanuit de entree is er toegang tot de inpandige berging te verkrijgen. De berging beschikt over een wasmachine aansluiting, cv opstelling (Nefit Proline uit 2024) en de meterkast met circa 8 groepen en 2 aardlekschakelaars. Verderop bevindt zich het toilet, de keuken, trap naar de eerste verdieping en de extra slaap-/werkkamer. De begane grond beschikt over een plavuizen vloerafwerking.

Keuken
Aan de achterzijde van de woning is de woonkeuken te vinden. De keuken is uitgevoerd met een houtfineerlook en onder andere voorzien van een plavuizen vloer, natuurstenen werkblad, 4 pits kookplaat (ceramisch), oven, afzuigkap, 1 ½ spoelbak, vaatwasser en losse koel-vriescombinatie.

Slaap-werkkamer
Achter de keuken is de extra slaap-werkkamer met lichtkoepel gelegen.

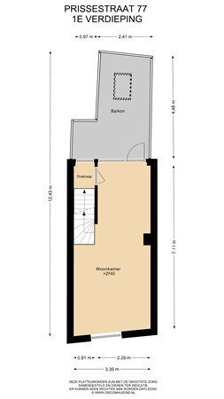
Eerste verdieping:
Woonkamer
De woonkamer beschikt over een laminaat vloerafwerking, trap naar de tweede verdieping, houten kozijnen met dubbele beglazing met aan de voorzijde een groot draai-/kiepraam. Via de achterzijde van de woonkamer is het royale dakterras van circa 13 m² op het Noorden te bereiken.

Tweede verdieping:
Slaapkamer
De grote slaapkamer op de tweede verdieping is voorzien van een laminaat vloerafwerking, groot Velux dakraam en airco (Mitsubishi inverter).

Badkamer
De badkamer op deze etage beschikt onder andere over een douchecabine, toilet (zwevend), wastafelmeubel en uitzetraam als natuurlijke ventilatie.

Bijzonderheden:

• Dakterras van circa 13 m²;
• Inpandige berging;
• CV Nefit Proline 2024;
• Op loopafstand van het centrum en NS station gelegen;
• Bouwjaar 2000;
• Inhoud circa 304 m³;
• Woonoppervlak circa 83 m²;

Vraagprijs: € 320.000,-.k.k.
Oplevering in overleg.

Kaart

Kenmerken

Overdracht

Referentienummer
05535
Vraagprijs
€ 320.000,- k.k.
Inrichting
Niet gestoffeerd
Inrichting
Niet gemeubileerd
Status
Verkocht
Aanvaarding
In overleg
Aangeboden sinds
Maandag 10 maart 2025
Laatste wijziging
Zaterdag 28 juni 2025

Bouw

Type object
Woonhuis, eengezinswoning, tussenwoning
Soort bouw
Bestaande bouw
Bouwperiode
2000
Dakbedekking
Bitumen
Dakpannen
Type dak
Samengesteld
Isolatievormen
Dakisolatie
Dubbel glas
Muurisolatie

Oppervlaktes en inhoud

Perceeloppervlakte
44 m²
Woonoppervlakte
83 m²
Inhoud
304 m³
Oppervlakte gebouwgebonden buitenruimte
13 m²

Indeling

Aantal bouwlagen
3
Aantal kamers
3 (waarvan 1 slaapkamer)
Aantal badkamers
1 (en 1 apart toilet)

Locatie

Ligging
In centrum

Energieverbruik

Energielabel
C

CV ketel

CV ketel
Nefit Proline
Warmtebron
Gas
Bouwjaar
2024
Combiketel
Ja
Eigendom
Eigendom

Uitrusting

Warm water
CV-ketel
Verwarmingssysteem
Centrale verwarming
Keukenvoorzieningen
Inbouwapparatuur
Badkamervoorzieningen
Douche
Toilet
Wastafelmeubel
Heeft airco
Ja
Heeft een balkon
Ja
Glasvezelaansluiting aanwezig
Ja
Beschikt over een internetverbinding
Ja
Heeft schuur/berging
Ja

Kadastrale gegevens

Kadastrale aanduiding
Culemborg I 4911
Perceeloppervlakte
44 m²
Omvang
Geheel perceel
Eigendomsituatie
Eigen grond

Brochure(s) en overige bijlagen

Prijssestraat 77, 4101 CP CULEMBORG (1) Download
Vrij Makelaardij